مشروع النقل الجماعي بخميس مشيط

تفاصيل المشروع:

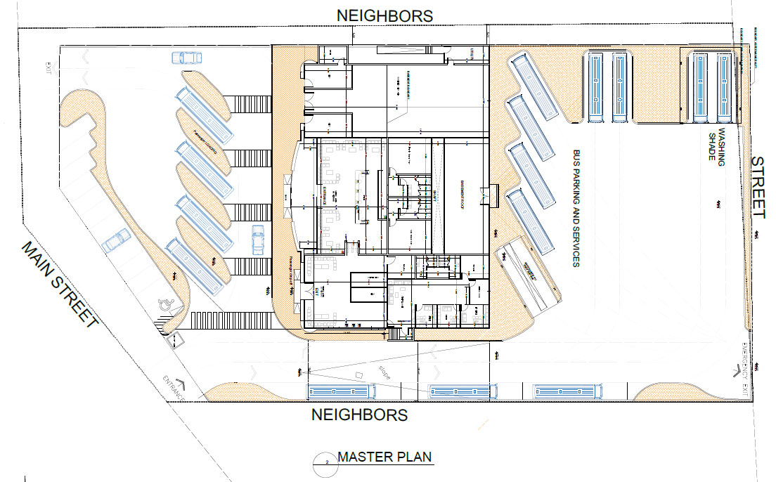
مشروع النقل الجماعي بمحافظة خميس مشيط، وهو عبارة عن إعادة استخدام وتهيئة مبنى قائم ليصبح محطة نقل جماعي بمساحة إجمالية تبلغ 7600 م²، ويتكون من بدروم ودور أرضي وفناء خارجي.

الموقعمحافظة خميس مشيط
المالكشركة سات للنقل الجماعي (سابتكو)
المقاولشركة البلوك الذهبي للمقاولات
الاستشاريشركة قصبة للهندسة المدنية

دور شركة قصبة للهندسة المدنية

تعريف المشروع:

إعادة استخدام وتهيئة مبنى قائم ليصبح محطة نقل جماعي. المبنى مكوّن من بدروم + دور أرضي + فناء خارجي، بمساحة إجمالية تبلغ 7600 م².

صور مراحل تنفيذ المشروع